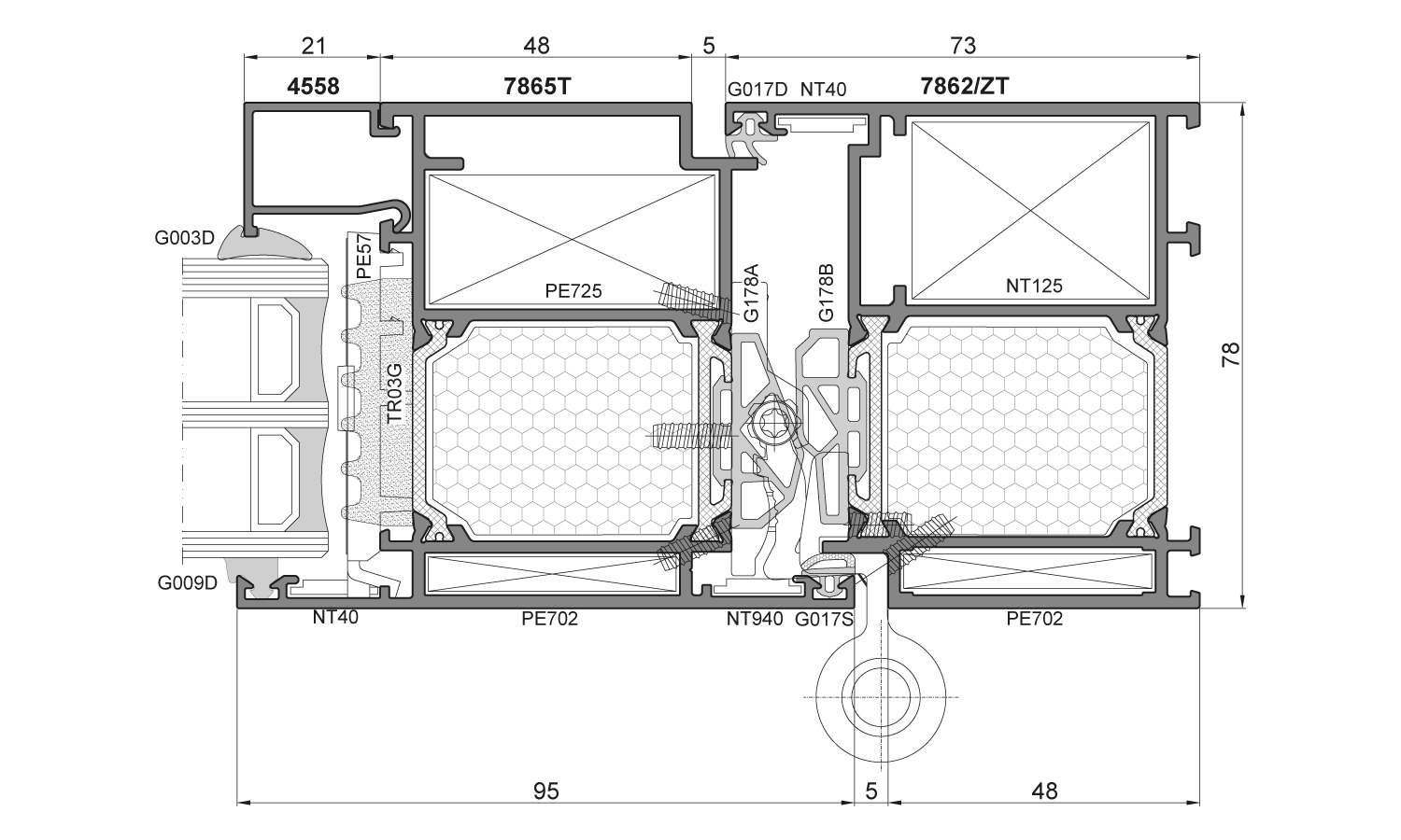
Trzykomorowy system izolowany termicznie przeznaczony do wykonywania konstrukcji drzwiowych.
- konstrukcja profili współpłaszczyznowych (luz wrębowy – 18 mm)
- listwy przyszybowe do rowka w standardzie Euro
- profilowane przekładki termiczne o szerokości 34 mm
- łatwe połączenie drzwi z witryną za pomocą specjalnie zaprojektowanych, kompatybilnych profili
- skrzydła drzwi zlicowane z ościeżnicą
- możliwość wykonywania konstrukcji o dużych gabarytach
- wiele połączeń narożnych
- duża swoboda w doborze różnego rodzaju okuć
- różne warianty izolacyjności termicznej, w zależności od zastosowanych wkładów izolacyjnych: PE78N+, PE78NHI, PE78NHI+



