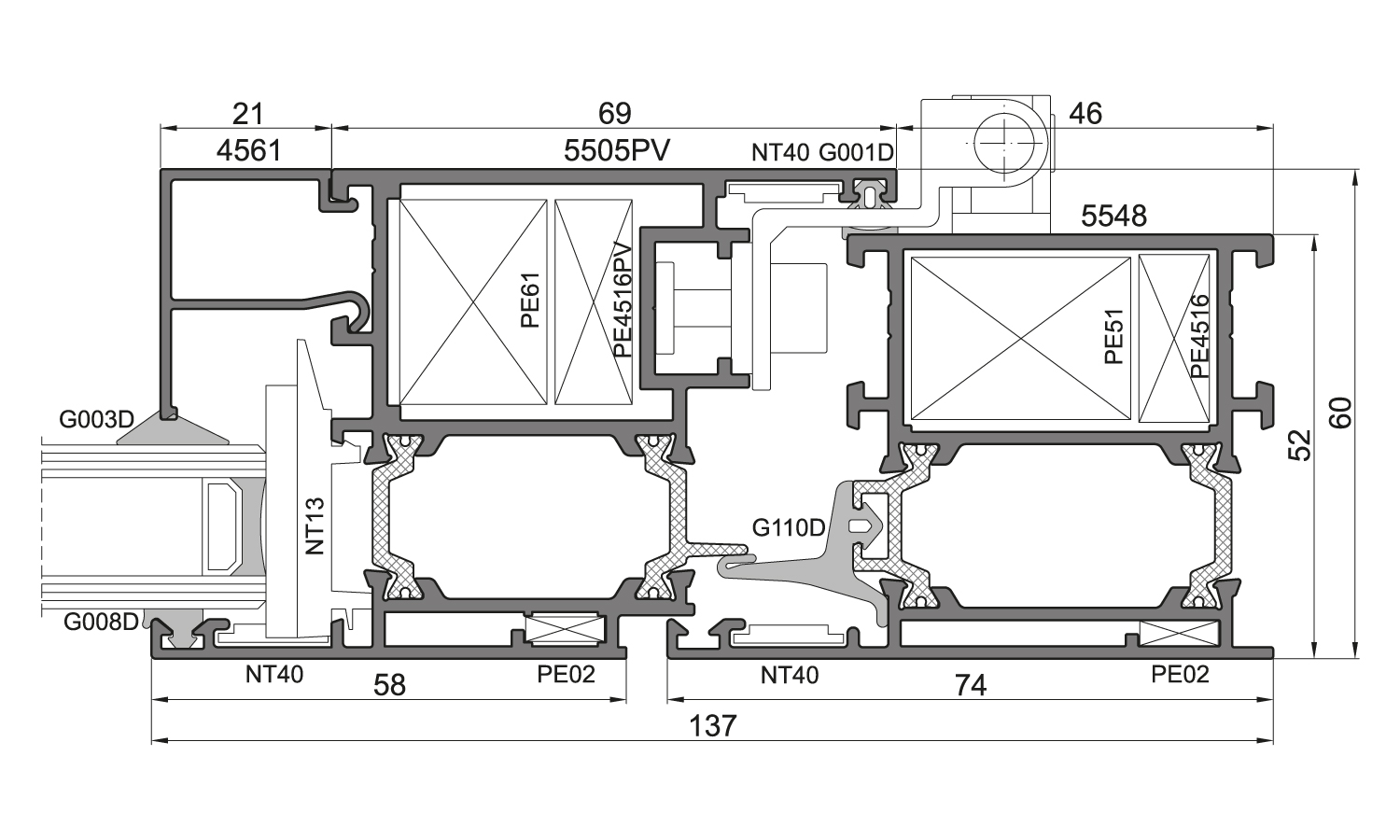
Ekonomiczny system posiada trzykomorową konstrukcję profili z rowkiem okuciowym w standardzie Euro oraz rowkiem okuciowym stosowanym w oknach i drzwiach balkonowych z profili PVC. Ponzio PE52:
- możliwość wykonywania konstrukcji o dużych gabarytach
- ścisłe powiązanie z innymi systemami Ponzio
- możliwość stosowania okuć z rowkiem Euro oraz PVC
- możliwość wykonania konstrukcji łukowych
- możliwość wykonywania połączeń narożnych skręcanych lub zagniatanych
- profile skrzydła i ościeżnicy zlicowane po stronie zewnętrznej

